Terreno rústico 34.7169 m2, con proyecto básico y licencia aprobada, Alqueria Blanca (Mallorca)
Visitas: 1494
Terreno rústico 34.7169 m2, con proyecto básico y licencia aprobada, Alqueria Blanca (Mallorca)
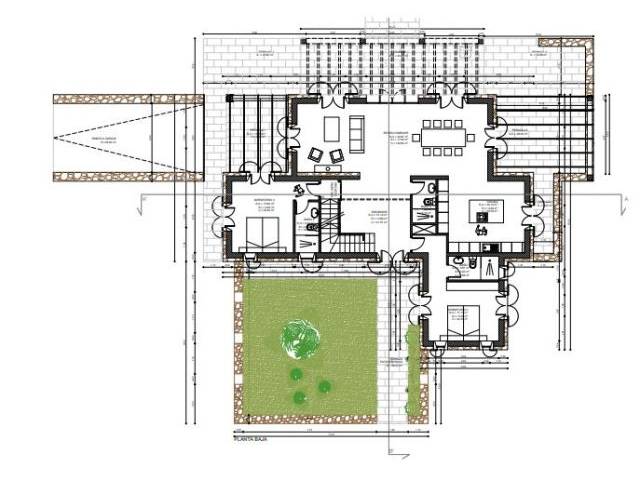
Terreno rústico edificable de 34.7169 m2, con proyecto básico y licencia aprobada por el Consell, en s’Alqueria Blanca.
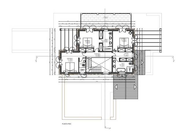
El proyecto trata de una vivienda grande de 430 m2 construidos en tres plantas con un total de 5 habitaciones dobles y 6 baños completos. La planta sótano se proyecta para garaje y otras dependencias.
En los exteriores piscina de 35 m2 con pool house.
La parcela está vallada con pared de piedra, tiene un pozo antiguo y se puede conectar a la red de agua del pueblo por la cercanía. La electricidad está muy cerca.
Muy buena situación, en esquina a dos caminos, con la superficie asfaltada.
A 10 minutos de la playa Cala Mondragó y a 40 minutos del aeropuerto.
Contáctenos si necesitas más información estaremos encantados de atenderle.
Mostrar todos los anuncios del usuario (11) Contactar con el anunciante Añadir a la lista Atrás





















