Grundstück mit Finca Projekt in Ses Salines
Aufrufe: 369
Grundstück mit Finca Projekt in Ses Salines
Exklusive Entwicklungsgelegenheit zwischen Ses Salines und Santanyí
Dieses architektonisch anspruchsvolle Landhausprojekt befindet sich in einer sehr begehrten Lage zwischen Ses Salines und Santanyí, im Herzen des malerischen Südostens Mallorcas. Umgeben von der charakteristischen natürlichen Schönheit der Region bietet das Grundstück die perfekte Kulisse für einen stilvollen und ruhigen Rückzugsort.
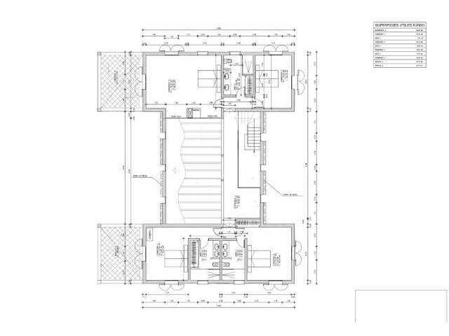
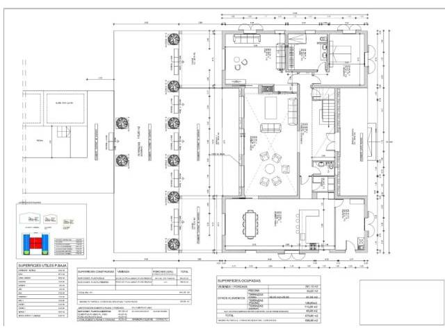
Das Designkonzept vereint moderne Ästhetik meisterhaft mit traditionellem mallorquinischem Charme und schafft ein Zuhause, das sowohl zeitgenössische Eleganz als auch mediterrane Authentizität ausstrahlt. Der Grundriss ist h-förmig gestaltet und legt großen Wert auf Offenheit, natürliches Licht und klare architektonische Linien.
Geplant sind fünf großzügige Schlafzimmer – eines im Erdgeschoss und vier im Obergeschoss. Die Master Suite besteht aus zwei miteinander verbundenen Räumen, die flexible Nutzung ermöglichen, und alle Schlafzimmer können mit einem eigenen Bad ausgestattet werden.
Diese Immobilie ist sowohl als privates Domizil als auch als langfristige Investition besonders attraktiv. Die exzellente Lage, die anspruchsvolle architektonische Vision und das anpassungsfähige Design bilden eine herausragende Gelegenheit für anspruchsvolle Käufer, die ein hochwertiges Projekt mit Gestaltungsfreiheit suchen.
Das Grundstück liegt in einer ruhigen, natürlichen Umgebung mit guter Anbindung an die umliegenden Dörfer und die Küste. Es bietet Privatsphäre, Ruhe und beste Ausrichtung, um Innenräume harmonisch mit der Natur zu verbinden.
Hinweis: Der Angebotspreis umfasst das Grundstück und das genehmigte Bauprojekt. Die Baukosten sind nicht enthalten.
Alle Anzeigen des Benutzers anzeigen (4) Kontakt aufnehmen Merken Zurück











