Terreno con proyecto de finca en Ses Salines
Visitas: 371
Terreno con proyecto de finca en Ses Salines
Oportunidad exclusiva de desarrollo entre Ses Salines y Santanyí
Este proyecto arquitectónicamente exigente de casa rural se encuentra en una zona muy codiciada entre Ses Salines y Santanyí, en el corazón del pintoresco sureste de Mallorca. Rodeado por la característica belleza natural de la región, el terreno ofrece el escenario perfecto para un retiro elegante y tranquilo.
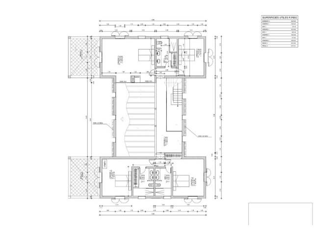
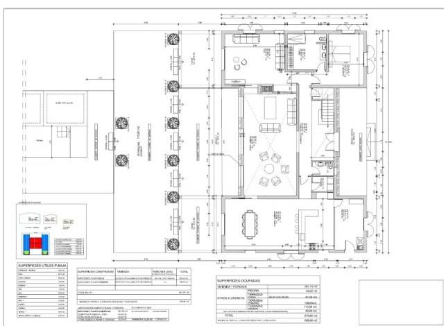
El concepto de diseño combina magistralmente la estética moderna con el encanto tradicional mallorquín, creando un hogar que transmite tanto elegancia contemporánea como autenticidad mediterránea. La planta tiene forma de H y da gran importancia a la apertura, la luz natural y las líneas arquitectónicas claras.
Se proyectan cinco dormitorios espaciosos: uno en la planta baja y cuatro en la planta superior. La suite principal consta de dos estancias comunicadas que permiten un uso flexible, y todos los dormitorios pueden equiparse con baño privado.
Esta propiedad es especialmente atractiva tanto como residencia privada como inversión a largo plazo. La excelente ubicación, la ambiciosa visión arquitectónica y el diseño adaptable constituyen una oportunidad sobresaliente para compradores exigentes que buscan un proyecto de alta calidad con libertad de diseño.
El terreno se encuentra en un entorno tranquilo y natural con buena conexión a los pueblos circundantes y a la costa. Ofrece privacidad, tranquilidad y una orientación óptima para conectar armoniosamente los espacios interiores con la naturaleza.
Aviso: El precio de oferta incluye el terreno y el proyecto de construcción aprobado. Los costes de construcción no están incluidos.
Mostrar todos los anuncios del usuario (4) Contactar con el anunciante Añadir a la lista Atrás











