Gewerbliche Empfehlungen - Haus, Garten, Pool
AcerOscuro Haus Modell "Estel de L´Alba" - Modulhaus
Aufrufe: 118
AcerOscuro Haus Modell "Estel de L´Alba" - Modulhaus
AcerOscuro Modulhaus Mallorca / AcerOscuro Architektenbüro Mallorca
Nachhaltig und energieeffizient Bauen auf Mallorca und Ibiza, modulare Bauweise auf Basis von Containermodulen, Energieeffizienz A (A+), vorgehängte und hinterlüftete Fassaden, Fußbodenheizung / Kühlung, automatische Be- und Entlüftung...
Kurze Bauzeit dank Vorfertigung in Lloseta (Mallorca), Kaufpreis inklusive Bauprojekt / Anforderung Baugenehmigung / Architektendienstleistungen durch hauseigenen Architekten.
Viele Hausmodelle auf unserer Homepage: www.aceroscuro.es Individuelle Planungen sind bei uns möglich.
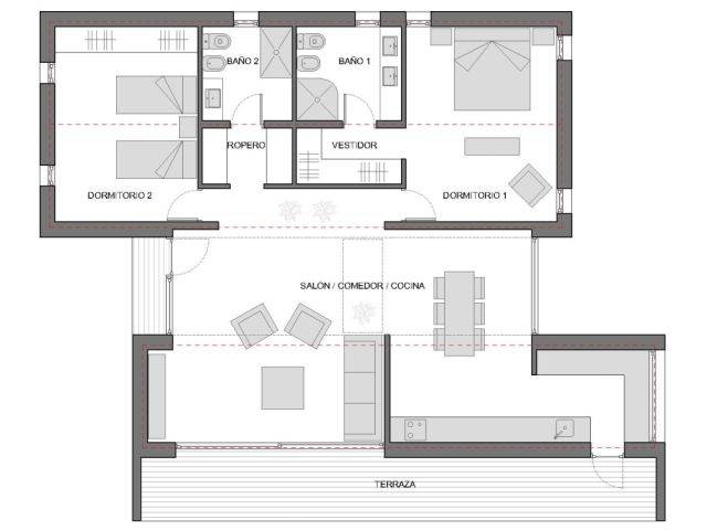
Hausmodell Estel de L´Alba:
Dieses Haus ist im horizontalen Architekturstil gestaltet, öffnet sich zum Himmel und zur Landschaft und ist für großzügige Grundstücke konzipiert, auf denen der Außenbereich ein wesentlicher Bestandteil des Lebens ist. Das Projekt erstreckt sich auf einer Ebene und schafft so eine direkte und fließende Verbindung zwischen Innenräumen, Veranden und Garten – ohne Hierarchien oder erzwungene Wege.
Der Grundriss ist um einen zentralen, hohen Bereich angeordnet, in den natürliches Licht durch Oberlichter fällt und der das Herzstück des Hauses bildet.
Dieser Raum dient als Treffpunkt, verbindet die Zimmer und vermittelt ein Gefühl von Weite und Ruhe. Die verwendeten Materialien unterstreichen diese Idee: Holz umhüllt fast die gesamte Außenfassade und erstreckt sich im zentralen Bereich bis ins Innere, wodurch die Kontinuität zwischen Innen und Außen verstärkt wird.
Das Ergebnis ist ein ruhiges und lichtdurchflutetes Haus, dessen Architektur sich dezent in die Landschaft einfügt. Ein Zuhause, geschaffen für ein entschleunigtes Leben, offen zum mallorquinischen Himmel, wo Licht, Textur und Stille das wahre Raumerlebnis prägen.
KAUFPREIS FERTIGHAUS SCHLÜSSELFERTIG ohne Grundstück! Kaufpreis zzgl. I.V.A. (10%).
www.aceroscuro.es
Alle Anzeigen des Benutzers anzeigen (10) Kontakt aufnehmen Merken Zurück











