Recomendaciones Comerciales - Hogar y Jardín, Piscina
AcerOscuro Casa Modelo "Estel de L´Alba" - Casa modular
Visitas: 90
AcerOscuro Casa Modelo "Estel de L´Alba" - Casa modular
AcerOscuro Casa modular Mallorca / AcerOscuro Estudio de Arquitectura Mallorca
Construcción sostenible y energéticamente eficiente en Mallorca e Ibiza, construcción modular basada en módulos contenedor, eficiencia energética A (A+), fachadas ventiladas con revestimiento, suelo radiante / refrigeración, ventilación automática de suministro y extracción...
Corto tiempo de construcción gracias a la prefabricación en Lloseta (Mallorca), precio de compra incluye proyecto de construcción / solicitud de licencia de obras / servicios de arquitectura por nuestro arquitecto interno.
Muchos modelos de casas en nuestra página web: www.aceroscuro.es. Con nosotros son posibles planificaciones individuales.
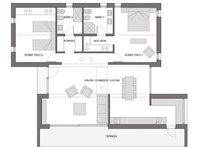
Modelo de casa Estel de L´Alba:
Esta casa está diseñada en un estilo arquitectónico horizontal, se abre al cielo y al paisaje y está concebida para parcelas generosas en las que el espacio exterior es una parte esencial de la vida. El proyecto se extiende en una sola planta y así crea una conexión directa y fluida entre los espacios interiores, las verandas y el jardín – sin jerarquías ni recorridos forzados.
La planta se organiza alrededor de una zona central y elevada por la que entra luz natural a través de lucernarios y que constituye el corazón de la casa.
Este espacio sirve como punto de encuentro, conecta las habitaciones y transmite una sensación de amplitud y calma. Los materiales utilizados subrayan esta idea: la madera envuelve casi toda la fachada exterior y se extiende en la zona central hacia el interior, reforzando así la continuidad entre el interior y el exterior.
El resultado es una casa tranquila y luminosa cuya arquitectura se integra discretamente en el paisaje. Un hogar creado para una vida desacelerada, abierto al cielo mallorquín, donde la luz, la textura y el silencio moldean la verdadera experiencia del espacio.
PRECIO DE COMPRA CASA PREFABRICADA LLAVE EN MANO ¡sin parcela! Precio de compra más I.V.A. (10%).
www.aceroscuro.es
Mostrar todos los anuncios del usuario (10) Contactar con el anunciante Añadir a la lista Atrás











