Traumfinca in Traumlage mit allen Extras zwischen Es LLombards und Santanyi --- F 150 VK
Aufrufe: 2038
Traumfinca in Traumlage mit allen Extras zwischen Es LLombards und Santanyi --- F 150 VK
Ebenerdige Neubaufinca mit Pool und Terrassen am Stadtrand von Santanyi - Richtung Es Lombards.
Die Straße hat einen guten Zugang zum Grundsstück welches mit einem automatischem Einfahrtstor versehen ist.
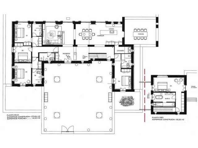
Das ummauerte und teilweise eingezäunte Grundstück von 17.758 m2 hat genügend Parkplätze, 60 m2 Salzwasserpool, im Erdgeschoss befindet sich eine überdachte Terrasse am Ausgang der Küche und im 1. Stock 2 weitere unüberdachte Terrassen mit fanstastischem Ausblick auf die Umgebung und die Stadt Santanyi.
Räumlichkeiten: Gebaut im modernen Stil 2022 mit gesamt 488 m2 und davon 260 m2 reine Wohnfläche.
Erdgeschoss: Der Eingangsbereich ist mit Einbausschränken versehen und gewährt Zugang zum Keller / Maschinenraum und zum Obergeschoss.
Dahinter folgend gelangt man in das helle Wohn,- Esszimmer mit geschlossenem Kamin, möblierte. graumoderne und mit allen Elektrogeräten ausgestattete Einbauküche sowie eine angrenzende Waschküche mit Waschmaschine.
Links vom Eingang – über einen Flur - befindet sich 1 Badezimmer mit Dusche, 3 Doppelschlafzimmer mit Einbauschränken (2 davon mit Badezimmern en Suite -Dusche).
Rechts vom Eingang befindet sich 1 Doppelschlafzimmer mit Einbauschrank mit 1 Badezimmer en Suite - Dusche.
Stock: 1 grosses Masterschlafzimmer mit Einbauschrank und 1 Badezimmer mit Badewanne/ Dusche in Suite, 1 Ankleidezimmer. Zugang zu den Terrassen.
Ausstattung: Unterkellert, breite und helle Räume, große Fensterfronten ( teilweise mit Schiebe und Kippfenstersystem), Porzellanbodenfliesen, Doppelverglasung, Zentralaircondition ( heiss – kalt ) und Fussbodenheizung in allen Räumen, Installation einer SAT Antenne und Internet möglich, GESA Strom, eigenes Brunnenwasser. Unmöbliert. 3,2 Mio
Video: https://www.youtube.com/watch?v=fNC4PNGrhBY
Entfernungen: Nach Santanyi ca. 3 km, zur nächsten Bucht ca. 4,5 km und nach Palma ca. 50 km
Alle Anzeigen des Benutzers anzeigen (272) Kontakt aufnehmen Merken Zurück













































