Bebaubares Grundstück mit Projekt nahe Portocolom
299.000 €
Anzeigendatum: 12.03.2026
Aufrufe: 36
Aufrufe: 36
Original Spanisch. Diese Anzeige wurde automatisch übersetzt.
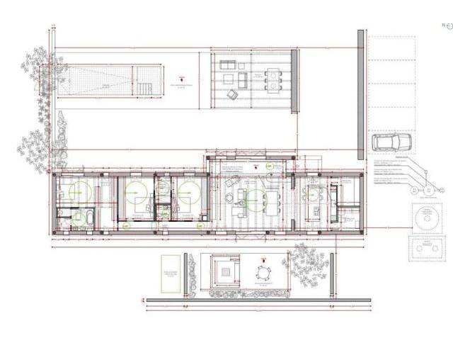
Bebaubares Grundstück mit Projekt nahe Portocolom
Möchten Sie auf Mallorca bauen, ohne jahrelang auf die Baugenehmigung zu warten? Entdecken Sie dieses Grundstück von 48.822 m², 3 Min. von Portocolom entfernt. Genehmigungen bereits erteilt, um mit dem Bau eines Chalets von 236 m² mit Pool zu beginnen. Sparen Sie Zeit und Bürokratie für 299.000 €.
Immobilienart: Bebaubares Grundstück
Pool: 33 m2
Grundstück: 48822 m2
andreea@serman.properties
+34 643 70 99 11
https://serman.properties/producto/terreno-edificable-con-proyecto-cerca-de-portocolom/
Alle Anzeigen des Benutzers anzeigen (7) Kontakt aufnehmen Merken Zurück
Anzeige teilen









