×
×
×
Anzeige / Advertisement

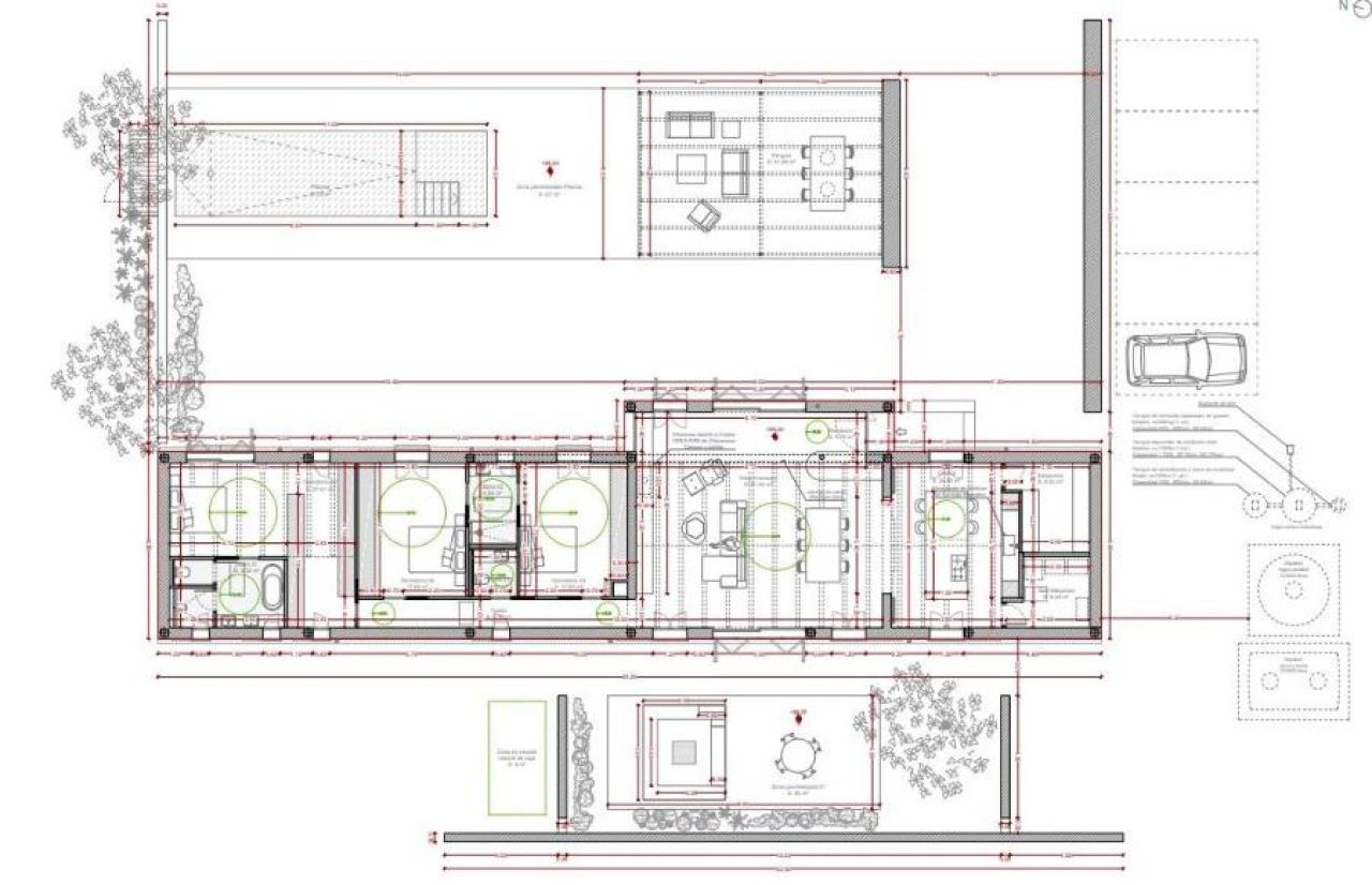
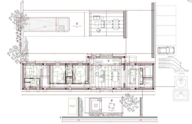
Bebaubares Grundstück mit Projekt nahe Portocolom



24.04.2026
ID: 262775
Anbieter:
SE
Serman.Properties 0

Original: Spanisch. Diese Anzeige wurde automatisch übersetzt.
299.000 €

Bebaubares Grundstück mit Projekt nahe Portocolom

Möchten Sie auf Mallorca bauen, ohne jahrelang auf die Baugenehmigung zu warten? Entdecken Sie dieses Grundstück von 48.822 m², 3 Min. von Portocolom entfernt. Genehmigungen bereits erteilt, um mit dem Bau eines Chalets von 236 m² mit Pool zu beginnen. Sparen Sie Zeit und Bürokratie für 299.000 €.

Immobilienart: Bebaubares Grundstück
Pool: 33 m2
Grundstück: 48822 m2

andreea@serman.properties
+34 643 70 99 11
https://serman.properties/producto/terreno-edificable-con-proyecto-cerca-de-portocolom/

Ähnliche Anzeigen